
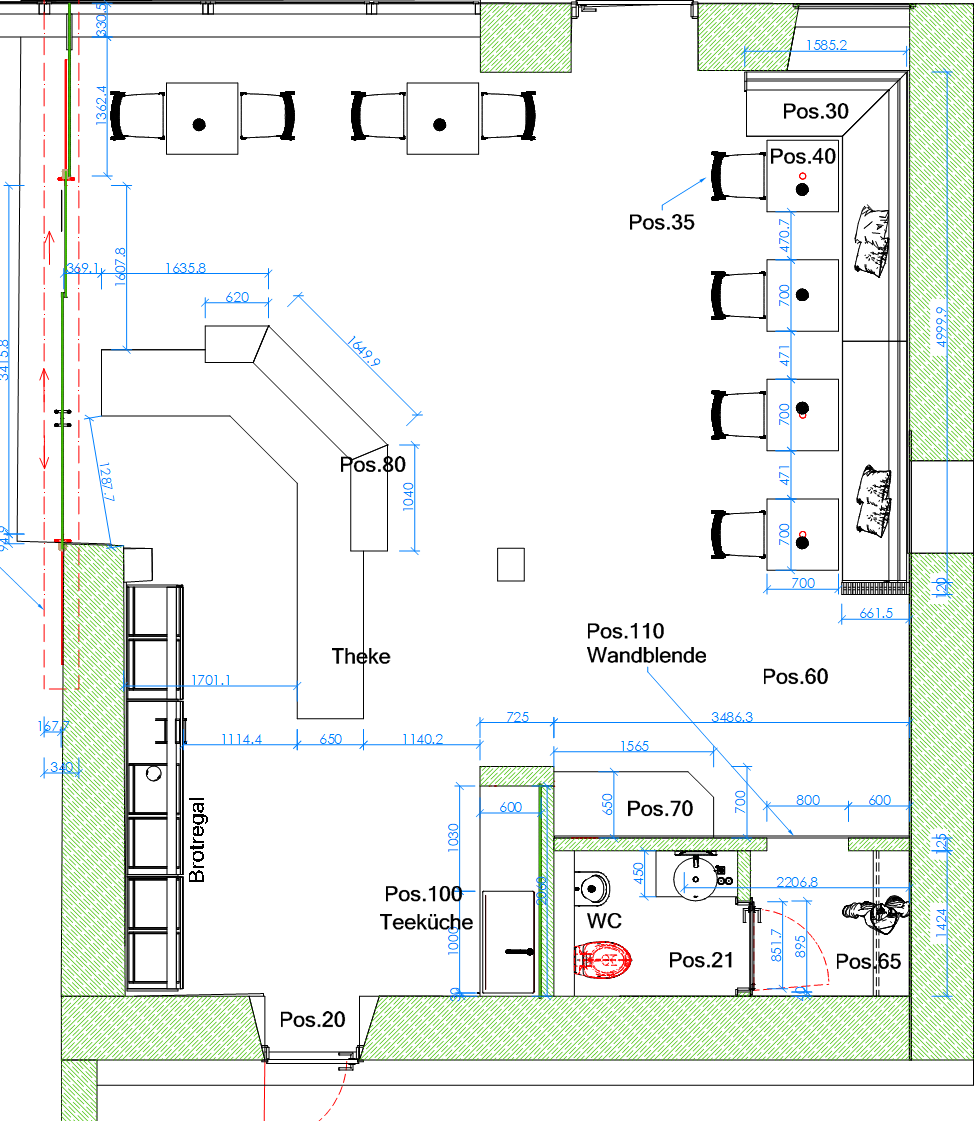
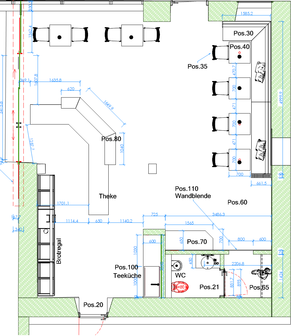
Der Dorfladen wird umgebaut!
Ab März 2025 beginnt der Umbau des Dorfladens Altenburg. Die Arbeiten werden in zwei Etappen durchgeführt und dauern voraussichtlich bis Mitte 2026.
Was ändert sich ...
Während der Umbauphase sind wir leider gezwungen, unsere Ladenfäche zu verkleinern und das Sortiment entsprechend anzupassen. Es kann sein, dass nicht alle Wünsche sofort erfüllt werden können, wir hoffen auf Ihr Verständnis!
Was ändert sich nicht ...
Unser freundliches Team! Das ist auch weiterhin zu den gewohnten Öffnungszeiten für Sie da und versucht trotz der Einschränkungen Ihre Wünsche im Rahmen der Möglichkeiten zu erfüllen.
Helfer gesucht ...
Wegen des Umbaus wird es immer wieder kleinere und größere Umbauaktionen geben, bei denen wir jede helfende Hand sehr schätzen! Interessierte können sich gerne an unser Ladenpersonal wenden.
Freuen Sie sich schon heute ...
auf den runderneuerten Dorfladen mit einem neuen tollen Konzept.
Das Dorfladen-Team freut sich trotz Umbau auf ihren Besuch und ihre Einkäufe.











